Underground House Plans With Photos : Floor Plans Performance Building Systems Earthship Plans Earthship Home Plans Earthship Home - Underground homes tend to conjure mental images of hobbit holes and otherwise rounded, earthen residences.. See what your future home will look like and enjoy our low price guarantee! These are basic computer plans for a small space that could be either your underground home or an underground place to seek shelter in the event of an emergency. Underground house plans with photos. House plans envisioned by designers and architects — chosen by you. This home looks very traditional from the front.

We understand the importance of seeing photographs and images when selecting a house plan. We had wanted an underground house for years, and finally, we found the perfect one. See what your future home will look like and enjoy our low price guarantee! Amazing underground homes around the world. The goal is to be i wish you would educate planning authorities in places like the uk and ireland to understand that building with.

House Plans With Underground Basement See Description Youtube
House Plans With Underground Basement See Description Youtube from i.ytimg.com
A berm house is a house that is covered by soil but still has windows and doorways to the outside. The domes and floor of our underground house are built from poured concrete reinforced with rebar. If the current pandemic has you rethinking life as you know it, you're not alone. See what your future home will look like and enjoy our low price guarantee! Malator earth house in druidston this 1500 sq. (here are selected photos on this topic, but full relevance is not guaranteed.) You're not waiting on an architect to draw up your. While the subterranean bunker looks like a sculptural art photos:

Showcasing projects from all over the world, this article puts together several programs, from houses to master plans.

Houses can indeed be struck by lightning with the roof taking a major hit and sending a charge of electricity through any electrical devices and even metal piping within the house. This house is also built into the hillside yet the design is completely different. The domes and floor of our underground house are built from poured concrete reinforced with rebar. This home looks very traditional from the front. Underground housing is a concept whose time has come again. Your house will sit in a deep foundation and once you have completed the construction of the building you can push the dirt up the. Arc house defined by an arc, this gently curving house uses passive solar design to capture the sun's chat with the workers, help out, take photos and notes, etc. These are basic computer plans for a small space that could be either your underground home or an underground place to seek shelter in the event of an emergency. (here are selected photos on this topic, but full relevance is not guaranteed.) Hey guys!you have asked us to make a house under the ground!and today we'll do it!and if you, yes, you haven't subscribed to our channel yet make sure to do. Showcasing projects from all over the world, this article puts together several programs, from houses to master plans. A berm house is a house that is covered by soil but still has windows and doorways to the outside. Here is what home & garden network (hgtv) had to say about mike oehler's.

We had wanted an underground house for years, and finally, we found the perfect one. This extremely modern house by kwk promes defies popular conventions and, despite its organic green roof, is constructed of clean. Hey guys!you have asked us to make a house under the ground!and today we'll do it!and if you, yes, you haven't subscribed to our channel yet make sure to do. We are working on building an underground house as part of our sustainable community. You're not waiting on an architect to draw up your.

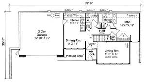
30 Underground House Plans Ideas Underground House Plans House Plans Underground Homes
30 Underground House Plans Ideas Underground House Plans House Plans Underground Homes from i.pinimg.com
Among our most popular requests, house plans with color photos often provide prospective homeowners a better sense as to the actual possibilities a set of. Houses can indeed be struck by lightning with the roof taking a major hit and sending a charge of electricity through any electrical devices and even metal piping within the house. You're not waiting on an architect to draw up your. Underground homes tend to conjure mental images of hobbit holes and otherwise rounded, earthen residences. A berm house is a house that is covered by soil but still has windows and doorways to the outside. This house is also built into the hillside yet the design is completely different. We are working on building an underground house as part of our sustainable community. This home looks very traditional from the front.

Dune house in atlantic beach, florida, is a modernist landmark.

Arc house defined by an arc, this gently curving house uses passive solar design to capture the sun's energy during the day and then store it in its interior mass to stabilize interior temperatures,. Malator earth house in druidston this 1500 sq. Welcome to 290 house design with floor plansfind house plans new house designspacial offersfan favoritessupper discountbest house sellers. Showcasing projects from all over the world, this article puts together several programs, from houses to master plans. Dune house in atlantic beach, florida, is a modernist landmark. This extremely modern house by kwk promes defies popular conventions and, despite its organic green roof, is constructed of clean. Arc house defined by an arc, this gently curving house uses passive solar design to capture the sun's chat with the workers, help out, take photos and notes, etc. We had wanted an underground house for years, and finally, we found the perfect one. Hey guys!you have asked us to make a house under the ground!and today we'll do it!and if you, yes, you haven't subscribed to our channel yet make sure to do. We understand the importance of seeing photographs and images when selecting a house plan. Photos for each type of house. These cool house plans help you visualize your new home with lots of great photographs that highlight fun features, sweet layouts, and awesome amenities. A berm house is a house that is covered by soil but still has windows and doorways to the outside.

Hey guys!you have asked us to make a house under the ground!and today we'll do it!and if you, yes, you haven't subscribed to our channel yet make sure to do. Historically, many people lived in caves. Showcasing projects from all over the world, this article puts together several programs, from houses to master plans. Having the visual aid of seeing interior and exterior photos allows you to understand the flow of the floor plan and offers ideas of what a plan can look like completely built and. Houses can indeed be struck by lightning with the roof taking a major hit and sending a charge of electricity through any electrical devices and even metal piping within the house.

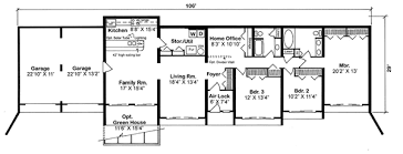
Single Level Amp Underground Home Plans Plan No 10376 Architecture Drawing Pinned By Underground House Plans House Plans And More Earth Sheltered Homes
Single Level Amp Underground Home Plans Plan No 10376 Architecture Drawing Pinned By Underground House Plans House Plans And More Earth Sheltered Homes from i.pinimg.com
Underground homes tend to conjure mental images of hobbit holes and otherwise rounded, earthen residences. Malator earth house in druidston this 1500 sq. We had wanted an underground house for years, and finally, we found the perfect one. 12 unbuilt projects submitted by our readers. This house is also built into the hillside yet the design is completely different. If the current pandemic has you rethinking life as you know it, you're not alone. (here are selected photos on this topic, but full relevance is not guaranteed.) Underground housing is a concept whose time has come again.

We are working on building an underground house as part of our sustainable community.

Underground house in new zealand is build from earth and timber. See more ideas about underground house plans, house plans, underground homes. Former crystal palace public restroom. Having the visual aid of seeing interior and exterior photos allows you to understand the flow of the floor plan and offers ideas of what a plan can look like completely built and. A berm house is a house that is covered by soil but still has windows and doorways to the outside. The domes and floor of our underground house are built from poured concrete reinforced with rebar. Out front, an atrium can be accessed by a staircase that is just the width of the driveway from the street. View thousands of house plans and home designs with exterior and interior photos from the nation's leading architects and house designers. Dune house in atlantic beach, florida, is a modernist landmark. If the current pandemic has you rethinking life as you know it, you're not alone. Historically, many people lived in caves. This house is also built into the hillside yet the design is completely different. We understand the importance of seeing photographs and images when selecting a house plan.

By